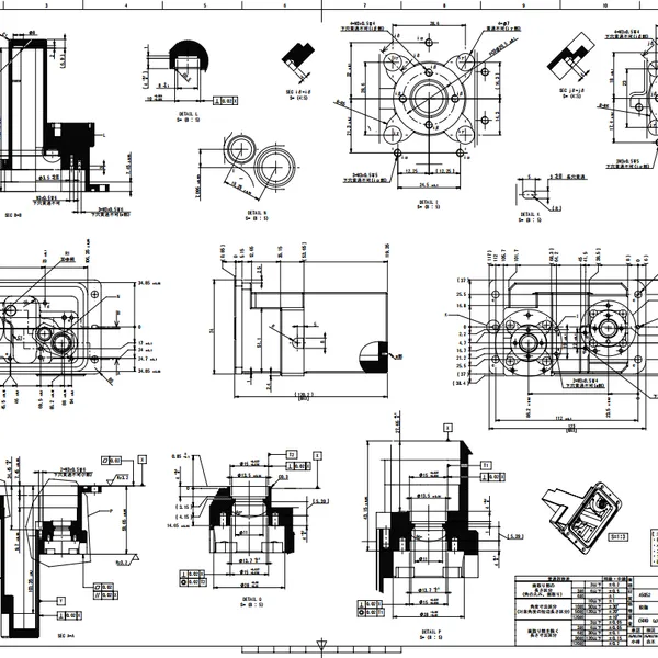
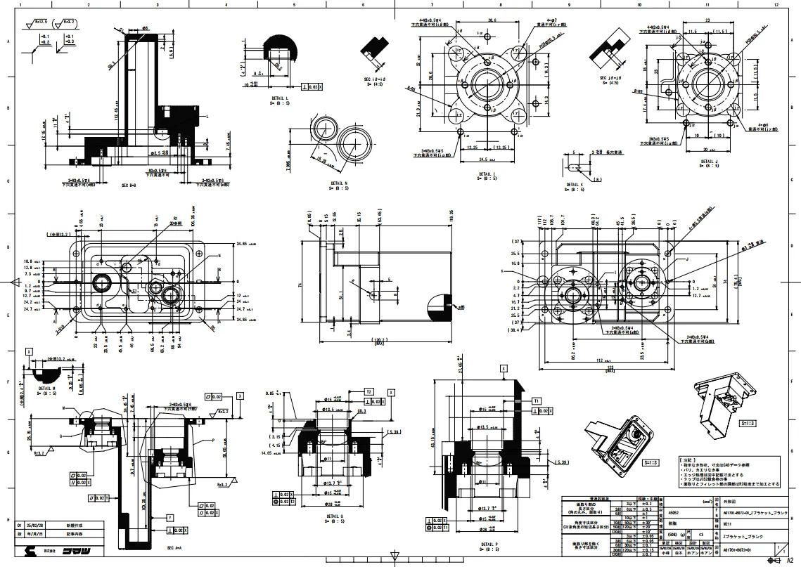
Tìm công ty có máy gia công machining center để đặt sản xuất nhôm A5052


đặt hàng 3-5 lần/năm, mỗi lần đặt 500 chiéc, bên sản xuất tự mua Nhôm A5052 nguyên liệu.

cần báo giá (giao tại xưởng của anh chị em= điều kiện giá là EXW) trước ngày  28/5/2025

nếu báo giá ổn, đối tác Nhật sẽ đến trực tiếp xưởng để thăm và làm việc cụ thể hơn.

anh chị em xem thêm bản vẽ + tài liệu gia công ở khung bên dưới (phần mô tả)

 


Còn hàng

Link tài liệu kỹ thuật và bản vẽ: mời load tại đây

Vui lòng gửi báo giá + giới thiệu công ty (nếu có) đặc biệt là loại máy Machining centre mà công ty có

liên hệ Hạnh 0976585558 , email: sales@vietlink.net.vn

 

  • Đánh giá của bạn
Đã thêm vào giỏ hàng